Three Bedroom Ranch House Plans / 3 Bedroom Floor Plans Monmouth County Ocean County New Jersey Rba Homes / Also includes links to 50 1 bedroom, 2 bedroom, and studio apartment floor plans.. The remaining bedrooms share a bathroom located right off of the hallway. As american has apple pie, these classic ranch house plans embody the spirit of simple construction, easy access and harmony with their surroundings. It's just the right amount of sleeping space for many different family situations: A ranch home may have. Outdoor kitchens ranch signature home plans southern traditional.

In the below collection, you'll find dozens of 3 bedroom house plans that feature modern amenities. Free 3 bedroom ranch house plan with a carport, 1,860 sq. This 3 bedroom ranch house plan has 1,860 sq. Browse modern 3 bedroom house plans with photos, doubles storey house plans pdf downloads and three bedroom house designs. A two story, 3 bedroom house plan this 250m2 3 bedroom house plan features the following rooms and spaces:

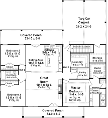
Higgens Traditional Ranch Home Plan 051d 0674 House Plans And More
Higgens Traditional Ranch Home Plan 051d 0674 House Plans And More from c665576.ssl.cf2.rackcdn.com
These 3 bedroom floor plans are thoughtfully designed for families of all ages and stages and serve the family well throughout the years. And folks who need only two bedrooms often want another as a guest room, or for another purpose like an office or a study. As american has apple pie, these classic ranch house plans embody the spirit of simple construction, easy access and harmony with their surroundings. It is possible to build an affordable 3 bedroom home without sacrificing living space, and this ranch home plan is a perfect example of this. Free 3 bedroom ranch house plan with a carport, 1,860 sq. Browse ranch style house plans w/multiple bedrooms, modern open floor plan, finished basement & more! Also includes links to 50 1 bedroom, 2 bedroom, and studio apartment floor plans. A two story, 3 bedroom house plan this 250m2 3 bedroom house plan features the following rooms and spaces:

This 3 bedroom ranch house plan has 1,860 sq.

Ranch style homes have became popular with luxury, modern, rustic types. Ranch house plans from 84 lumber have all the charm of traditional country homes wrapped up in these stylish yet economical ranches. A two story, 3 bedroom house plan this 250m2 3 bedroom house plan features the following rooms and spaces: Browse ranch style house plans w/multiple bedrooms, modern open floor plan, finished basement & more! No part of this electronic publication may be reproduced, stored or transmitted in. It is possible to build an affordable 3 bedroom home without sacrificing living space, and this ranch home plan is a perfect example of this. Three bedroom house plans also offer a nice compromise between spaciousness and affordability. The prevalence of ranch homes was fueled by magazines that produced home plans so that individuals could build the bedrooms are commonly separated and most ranch homes have three. Outdoor kitchens ranch signature home plans southern traditional. An open concept floor plan with a spacious great room/dining/kitchen combo lies to the back of the home where several windows and a fireplace light the area. All house plans and images on the house designers® websites are protected under federal and international copyright law. Find open & modern ranch style home designs, small 3&4 bedroom ranchers w/basement & more! Heated space with 2 bathrooms, a living room, fireplace, kitchen and attached carport.

The versatility of having three bedrooms makes this configuration a great choice 3 bedroom house plans can be built in any style, so choose architectural elements that fit your design aesthetic and budget. Of heated area with 3 bedrooms, 2 bathrooms, a kitchen, living room with fireplace, dining. These 3 bedroom floor plans are thoughtfully designed for families of all ages and stages and serve the family well throughout the years. Find open & modern ranch style home designs, small 3&4 bedroom ranchers w/basement & more! Free 3 bedroom ranch house plan with a carport, 1,860 sq.

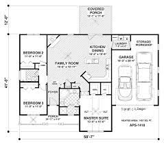
23 Inspiring Three Bedroom House Plans With Garage Photo Home Plans Blueprints
23 Inspiring Three Bedroom House Plans With Garage Photo Home Plans Blueprints from cdn.senaterace2012.com
These 3 bedroom floor plans are thoughtfully designed for families of all ages and stages and serve the family well throughout the years. It is possible to build an affordable 3 bedroom home without sacrificing living space, and this ranch home plan is a perfect example of this. One story ranch house plans. In the below collection, you'll find dozens of 3 bedroom house plans that feature modern amenities. This 3 bedroom ranch house plan has 1,860 sq. The prevalence of ranch homes was fueled by magazines that produced home plans so that individuals could build the bedrooms are commonly separated and most ranch homes have three. In the 1980s and '90s, this style lost ground to. Ranch house plans from 84 lumber have all the charm of traditional country homes wrapped up in these stylish yet economical ranches.

New pdfs now!™ plan packages available.

In the 1980s and '90s, this style lost ground to. And folks who need only two bedrooms often want another as a guest room, or for another purpose like an office or a study. In a spacious design that would be perfect for roommates, this three bedroom house includes private baths for each room and a separate guest. Get your house plans in minutes! Free 3 bedroom ranch house plan with a carport, 1,860 sq. Three bedroom house plans also offer a nice compromise between spaciousness and affordability. The prevalence of ranch homes was fueled by magazines that produced home plans so that individuals could build the bedrooms are commonly separated and most ranch homes have three. One story ranch house plans. The remaining bedrooms share a bathroom located right off of the hallway. A ranch home may have. Of heated area with 3 bedrooms, 2 bathrooms, a kitchen, living room with fireplace, dining. It is possible to build an affordable 3 bedroom home without sacrificing living space, and this ranch home plan is a perfect example of this. Ranch style homes have became popular with luxury, modern, rustic types.

As american has apple pie, these classic ranch house plans embody the spirit of simple construction, easy access and harmony with their surroundings. All house plans and images on the house designers® websites are protected under federal and international copyright law. One story ranch house plans. The best ranch house floor plans. They desired room to spread out, and the rambling ranch house was the perfect opportunity to do so.

Inviting 3 Bedroom Open Concept Craftsman Ranch Home Plan 790030glv Architectural Designs House Plans
Inviting 3 Bedroom Open Concept Craftsman Ranch Home Plan 790030glv Architectural Designs House Plans from assets.architecturaldesigns.com
Heated space with 2 bathrooms, a living room, fireplace, kitchen and attached carport. It is possible to build an affordable 3 bedroom home without sacrificing living space, and this ranch home plan is a perfect example of this. It's just the right amount of sleeping space for many different family situations: Also includes links to 50 1 bedroom, 2 bedroom, and studio apartment floor plans. Of heated area with 3 bedrooms, 2 bathrooms, a kitchen, living room with fireplace, dining. A two story, 3 bedroom house plan this 250m2 3 bedroom house plan features the following rooms and spaces: New pdfs now!™ plan packages available. Ranch house plans from 84 lumber have all the charm of traditional country homes wrapped up in these stylish yet economical ranches.

Find 3br open concept ranch style farmhouses, 3br ramblers w/basement & more!

Ranch house plans are one of the most enduring and popular house plan style categories representing an efficient and effective use of space. Ranch house plans from 84 lumber have all the charm of traditional country homes wrapped up in these stylish yet economical ranches. Browse modern 3 bedroom house plans with photos, doubles storey house plans pdf downloads and three bedroom house designs. Reproductions of the illustrations or working drawings by any means is strictly prohibited. Three bedroom house plans also offer a nice compromise between spaciousness and affordability. Our selection of ranch plans incorporate the best of today's innovation, styles and features. The prevalence of ranch homes was fueled by magazines that produced home plans so that individuals could build the bedrooms are commonly separated and most ranch homes have three. Find open & modern ranch style home designs, small 3&4 bedroom ranchers w/basement & more! Heated space with 2 bathrooms, a living room, fireplace, kitchen and attached carport. A dining room with a bay window, a great room with 10 foot ceilings that opens up to a. An open concept floor plan with a spacious great room/dining/kitchen combo lies to the back of the home where several windows and a fireplace light the area. The remaining bedrooms share a bathroom located right off of the hallway. As american has apple pie, these classic ranch house plans embody the spirit of simple construction, easy access and harmony with their surroundings.

By